胶东在线12月12日讯(记者 秦秀鹏)今天上午10时,烟台市莱山区第二实验小学北侧两宗优质地块(烟J[2025] 2002号莱山区第二实验小学北侧A宗地、烟J[2025] 2003号莱山区第二实验小学北侧B宗地)正式挂牌成交,总成交金额达9.54亿元,分别由烟台市建治置业有限责任公司、上海招悦汇尔城市建设发展有限公司出价最高3.09亿、6.45亿竞得。本次出让地块地处城市核心发展片区,紧邻优质教育资源,是烟台市推进城市更新、优化民生配套的重点项目,标志着莱山区居住品质与社区服务将迎来新一轮升级。
本次成交的两宗地块均位于莱山区第二实验小学北侧,地理位置优越,周边路网规划完善。第一宗地(烟J[2025] 2002号莱山区第二实验小学北侧A宗地)出让面积34206.7平方米,成交总价3.09亿元,容积率1.0-1.05。地块规划强调低密宜居与社区配套融合,将建设住宅不大于3.51万平方米,并配建城市书房、社区商业、警务室、党群服务站等公共服务设施,充分满足居民文化、生活与政务需求。第二宗地(烟J[2025] 2003号莱山区第二实验小学北侧B宗地)出让面积69336.8平方米,成交总价6.45亿元,容积率1.0-1.1。该地块在居住功能基础上,进一步扩充了民生服务内容,规划配建社区食堂、社区卫生服务站、老年日间照料中心、文化体育设施等,构建“一站式”社区生活圈,显著提升片区综合服务能力。两宗地块建筑限高均为36米,未来将形成布局舒朗、环境宜居的中低层住区,与周边城市风貌和谐共生。

莱山区作为烟台城市拓展和品质提升的重要区域,近年来持续加大基础设施与公共服务投入。此次出让地块不仅毗邻莱山区第二实验小学,享有优质教育资源,而且紧邻规划中的塔山北路等城市干道,交通便利,区位优势明显。该片区的开发建设将对莱山区城市空间结构优化、居住环境改善、公共服务提升产生积极推动作用。
从规划要求可以看出,此次土地出让高度重视民生红利释放。两宗地块均明确要求配建多项公共服务设施。文化休闲方面,配备城市书房、文化体育设施用房,营造书香社区氛围;生活服务方面,设置社区食堂、配套商业(含超市、咖啡馆、理发馆等),便捷居民日常生活;健康养老方面,规划社区卫生服务站、老年日间照料中心,构建社区健康养老支持网络;社区治理方面,配套警务室、居委会、党群服务站等,提升基层服务效能。这些设施建成后,将有效补齐该区域公共服务短板,形成功能完善、宜居宜业的15分钟社区生活圈,让居民实实在在享受到城市发展带来的便利与舒适。
此次地块成功出让,反映出市场对烟台城市发展前景的坚定信心。低容积率、高配套标准的规划要求,体现了烟台市推动城市建设向品质提升转变的发展思路。随着项目的逐步落地,烟台市城市功能将更加完善,城市面貌将持续更新,进一步吸引人才集聚,促进产城融合,为烟台高质量发展注入新的活力。
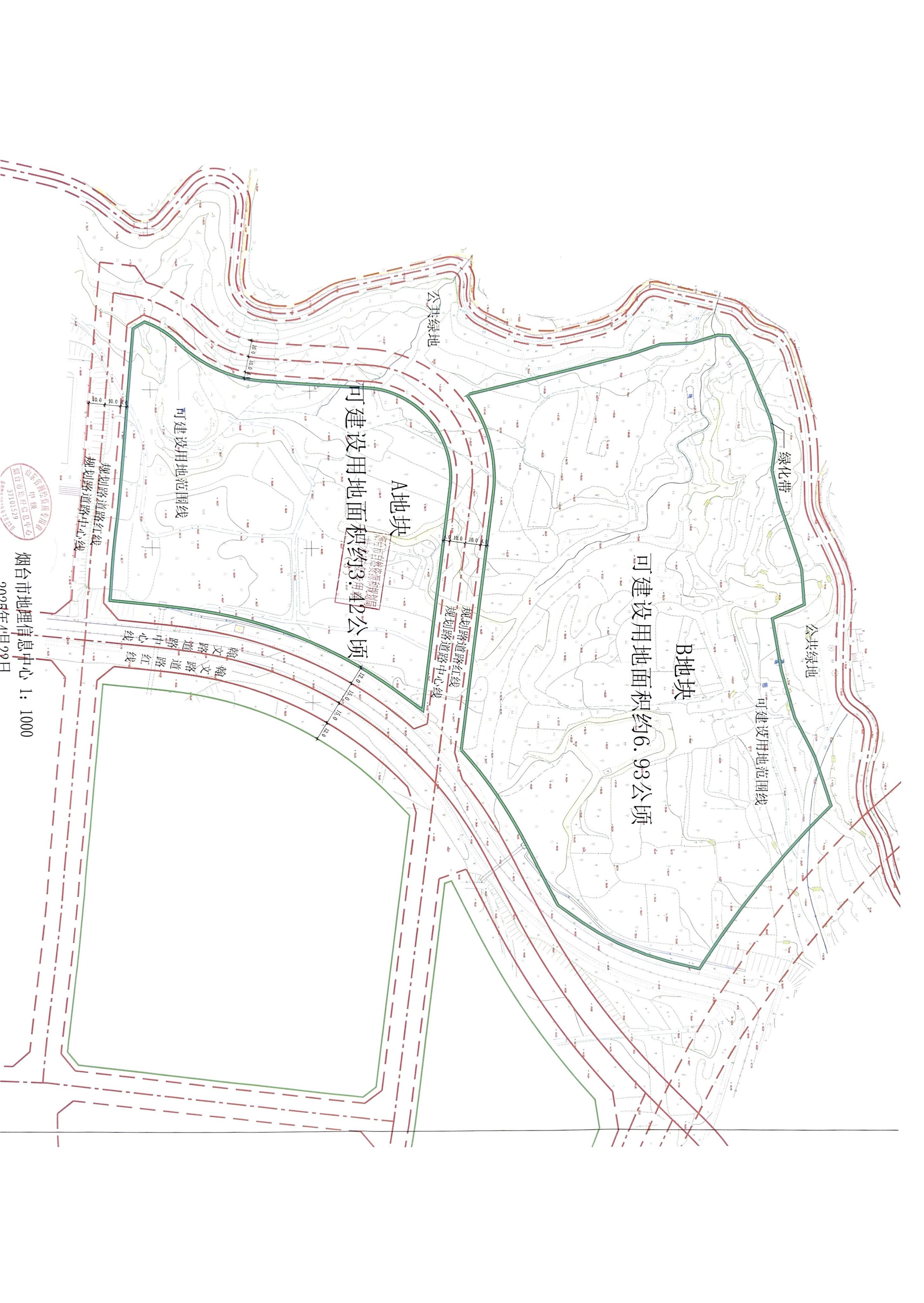
【莱山区第二实验小学北侧A宗地】
地块编号:烟J[2025] 2002号
土地位置:位于莱山区第二实验小学北侧,东至翰文路,南至规划路,西至规划路,北至规划路。
土地用途:居住用地
成交总价:30900万元(总价)
出让面积:34206.7平方米
容积率:>1.0且≤1.05
溢价率:6.55%
规划地上建筑面积大于3.52万平方米且小于等于3.69万平方米,规划计容建筑面积大于3.42万平方米且小于等于3.59万平方米,其中包括:住宅不大于3.51万平方米,计容配套公建不少于800平方米,包括:城市书房300平方米、社区配套商业500平方米(含小型超市、咖啡馆、理发馆等);不纳入容积率计算配套公建不少于1000平方米,包括:社区综合服务设施600平方米(含警务室、居委会、党群服务站等)、物业管理用房350平方米、公厕50平方米(可结合商业对外设置)。规划地下车库建筑面积不少于2.5万平方米。建筑高度小于等于36米。

【莱山区第二实验小学北侧B宗地】
地块编号:烟J[2025] 2003号
土地位置:位于莱山区第二实验小学北侧,东至翰文路,南至规划路,西至规划路及用地边界,北至用地边界及塔山北路。
土地用途:居住用地
成交总价:64500 万元(总价)
出让面积:69336.8平方米
容积率:>1.0且≤1.1
溢价率:5.74%
规划地上建筑面积大于7.08万平方米且小于等于7.77万平方米,规划计容建筑面积大于6.93万平方米且小于等于7.62万平方米,其中包括:住宅不大于7.52万平方米,计容配套公建不少于1000平方米,包括:社区食堂300平方米、社区配套商业700平方米(含小型超市、咖啡馆、理发馆等);不纳入容积率计算配套公建不少于1500平方米,包括:社区卫生服务站200平方米、文化体育设施用房300平方米、老年日间照料中心350平方米、物业管理用房650平方米。规划地下车库建筑面积不少于4.5万平方米。建筑高度小于等于36米。







2020年全国“放鱼日”同步增殖放流活动在烟
山东滑雪高手汇聚“雪窝”烟台 赛场飞驰比
2000余名民间艺人齐聚
以新姿态奔赴新征程
